BW Logo groß- Kopie
Belgarder Straße
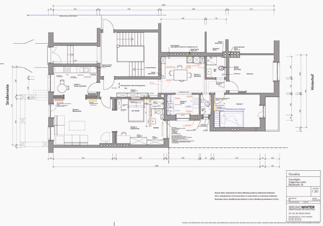
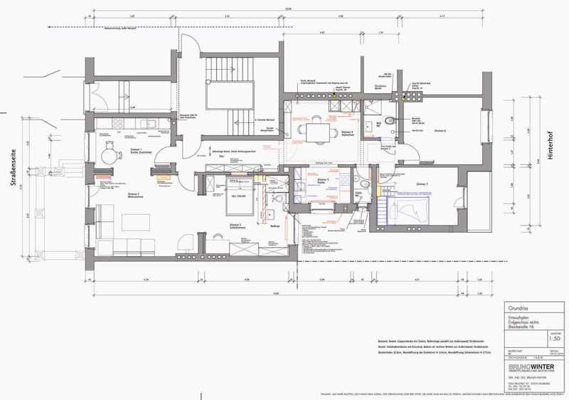
Bleickenalle
Grillparzer Straße
Kirchenstraße
ansichtkircheweie Kopie 1300 erstes
Neukoppel
Bartelsstraße, Gewerbehof
Uhrenhaus

Grillparzer Straße

Interior Design

Belgarder Straße

Neukoppel

Kirchenstraße

Planung diverser Umbauarbeiten im Bestand in verschiedenen Einrichtungen der Stiftung


  • Beratung
  • Umbauplanungen im Office Bereich
  • Ausschreibung und Bauleitung


Ausführungen von 1996 bis 2004

Bleickenallee

Stiftung Bodelschwingh

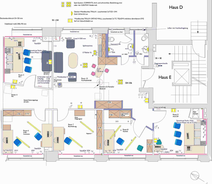
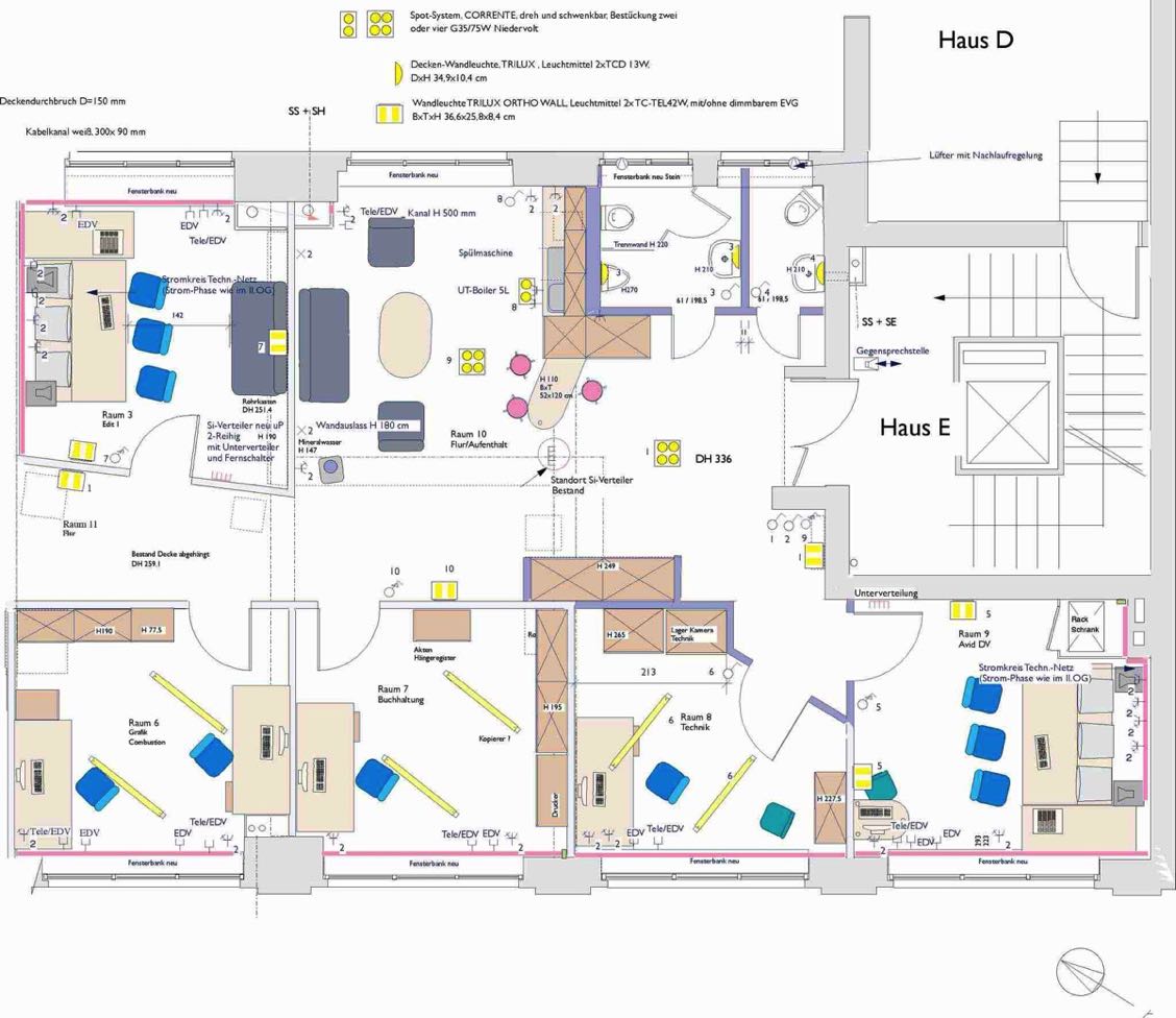
Bartelsstraße

Gewerbehof

Umbauarbeiten im Bestand


Büro-Filmschnittetagen, Gaststätte, Hotelrezeption


  • Raumkonzepte
  • Beratung Ausführungsplanungen und Bauleitung


2009 / 2011

Uhrenhaus

Umbau im Bestand


  • Beratung, Detailplanung, Kostenschätzung, Kostenberechnung
  • Ausschreibung und Bauleitung


2016

Mit der Innenarchitektur eine ganzheitliche Atmosphäre zu schaffen und durch individuelle Lösungen zu überzeugen ist mein Ziel. Das Interior Design zeichnet sich durch Klarheit des Designs und Liebe zum Detail aus. Neue Raumstrukturen, individuelle Möbel und besondere Räume nach speziellen Wünschen zu entwickeln, ist ein Prozess, der mit Offenheit, Freude, Detailwissen  und Planungssicherheit begleitet wird.

Alle Projekte haben eines gemeinsam: Sie enthalten ein einzigartiges Konzept, das in enger Zusammenarbeit mit der jeweiligen auftraggebenden Person entsteht.

Umbau im Bestand, Anbau


  • Sanierung des Bestandsgebäudes und Anbau
  • Einrichtungsplanung und Einzelanfertigungen


  • Leistungsphasen nach HOAI  1 - 8


2016

Umbau im Bestand, Haustechnik


  • Ausführungsplanung
  • Bauleitung


In Kooperation mit dem Architekturbüro H. Hofmann


2014

Umbau, Ladenbau


  • Beratung, Ausführungskonzept
  • Ausführungsplanung aller Gewerke
  • Leistungsphasen nach HOAI  1 - 8
  • Sondermöbel


2009

Umbau im Bestand, Arztpraxis

 

  • Ausführungsplanung aller Gewerke
  • Leistungsphasen nach HOAI  1 - 8
  • Sondermöbel


1999 / 2007

Ausstellungsdesign

 

  • Gestaltung, Ausführungsplanung der Ausstellungselemente


Zusammenarbeit mit Natur Erleben e.V. und Antje Härtel Design


2005 und 2009

© BRUNO WINTER

Impressum

Kontakt