Die alte Dickbeschichtung der Fassadenfläche wurde entfernt, Putzflächen und marode Balkone saniert, die neue Wandbeschichtung wurde mit einem Dünnputz mit Gewebeeinlage und mineralischer Beschichtung aus Silikatfarbe ausgeführt.
Ursprüngliche Farbgebung vor 2012
Alter Balkon mit durchgerosteten Trägern.
Sichtbare Schäden nach dem entfernten Estrich und abgebeizten Putzflächen.
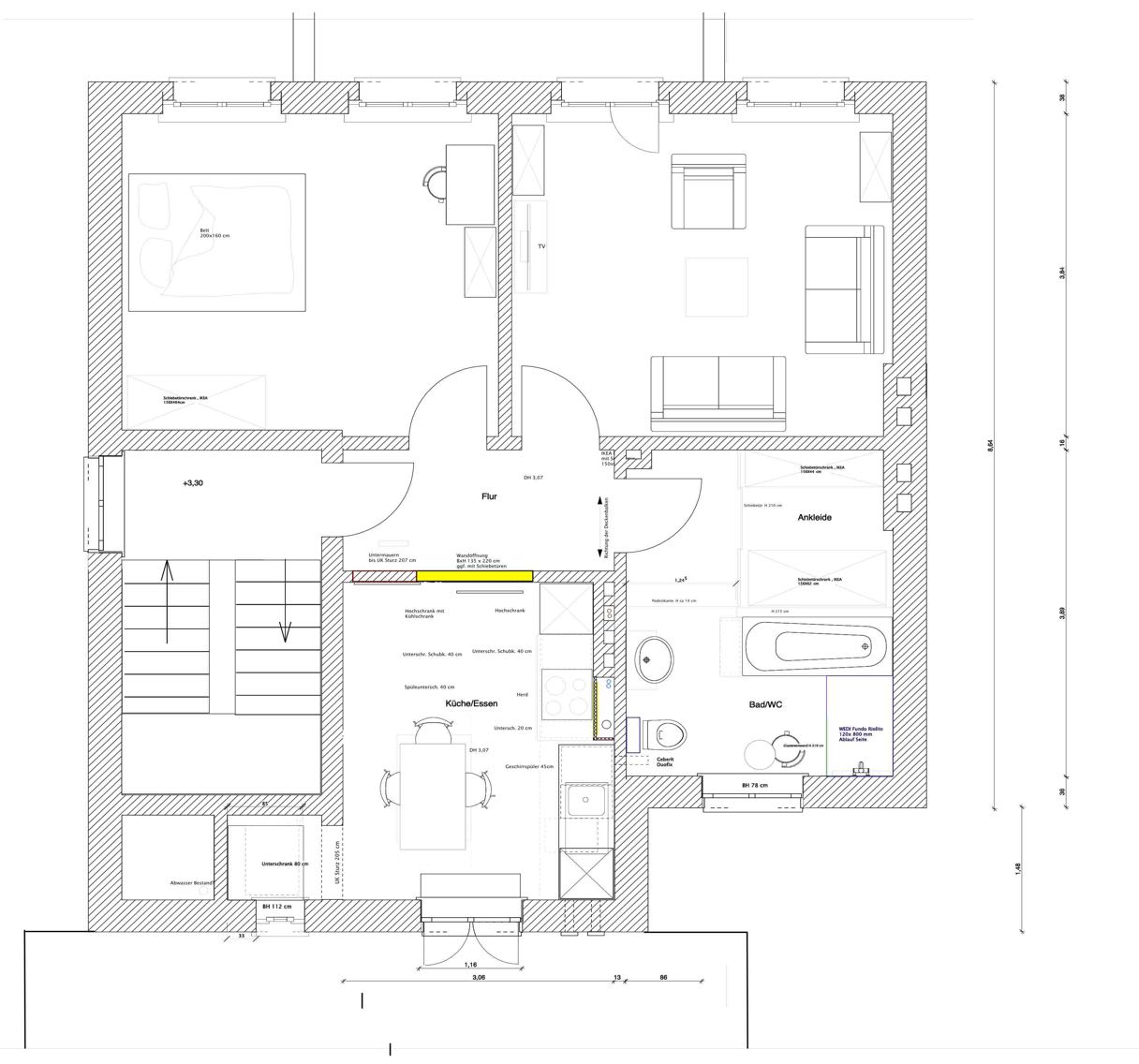
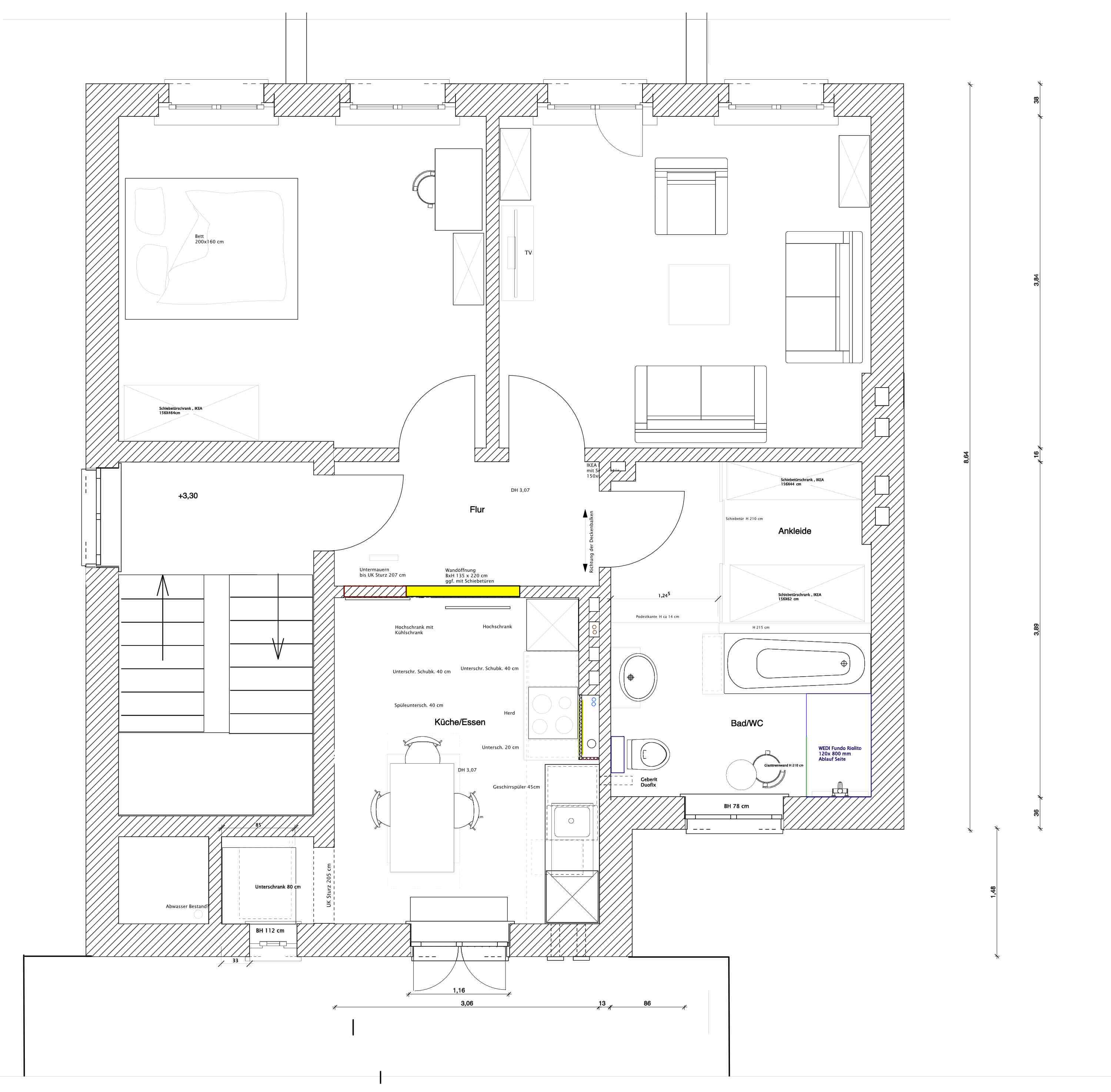
Entwurf, Gestaltung des Wohnraumes im ersten Obergeschoss. Neues Bad, Zugang zur Terasse.
Detailplan, Austritt auf die Terasse, Dachfläche Anbau.
Umbau im Bestand
BV Seestraße
Fassadensanierung
Umbauten
Beratung, Ausfühungsplanung, Aussschreibung und Bauleitung