BW Logo groß- Kopie

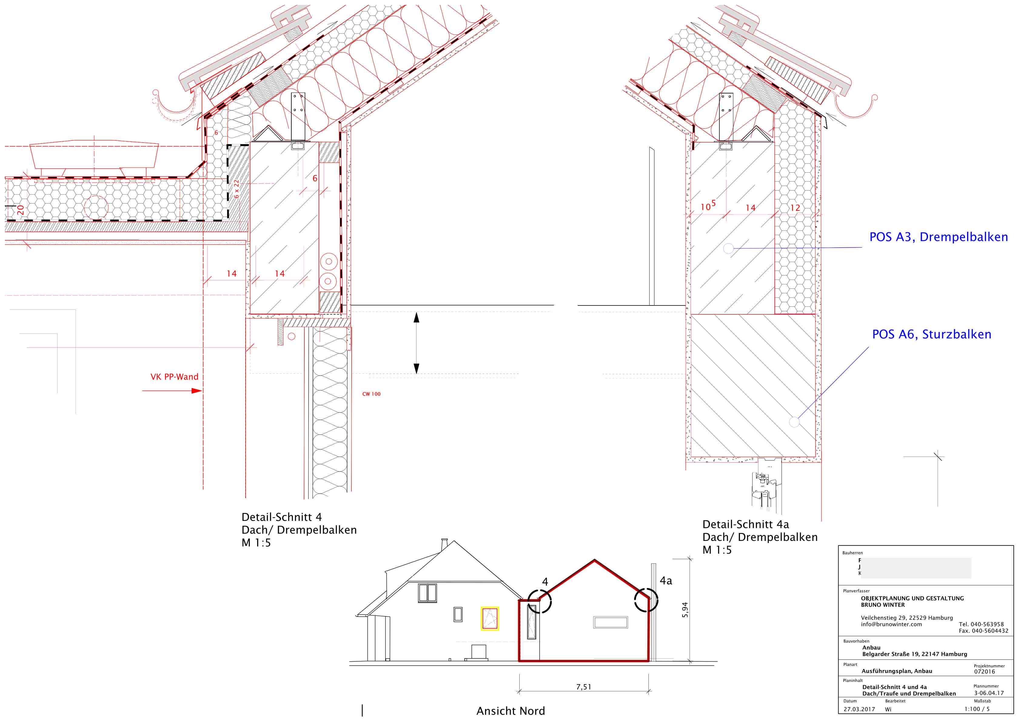
Nach Sicherung der alten Balkonplatten, abbruch und erneuern der Träger und der Auf- Unterlagsträger

Belgarder Straße

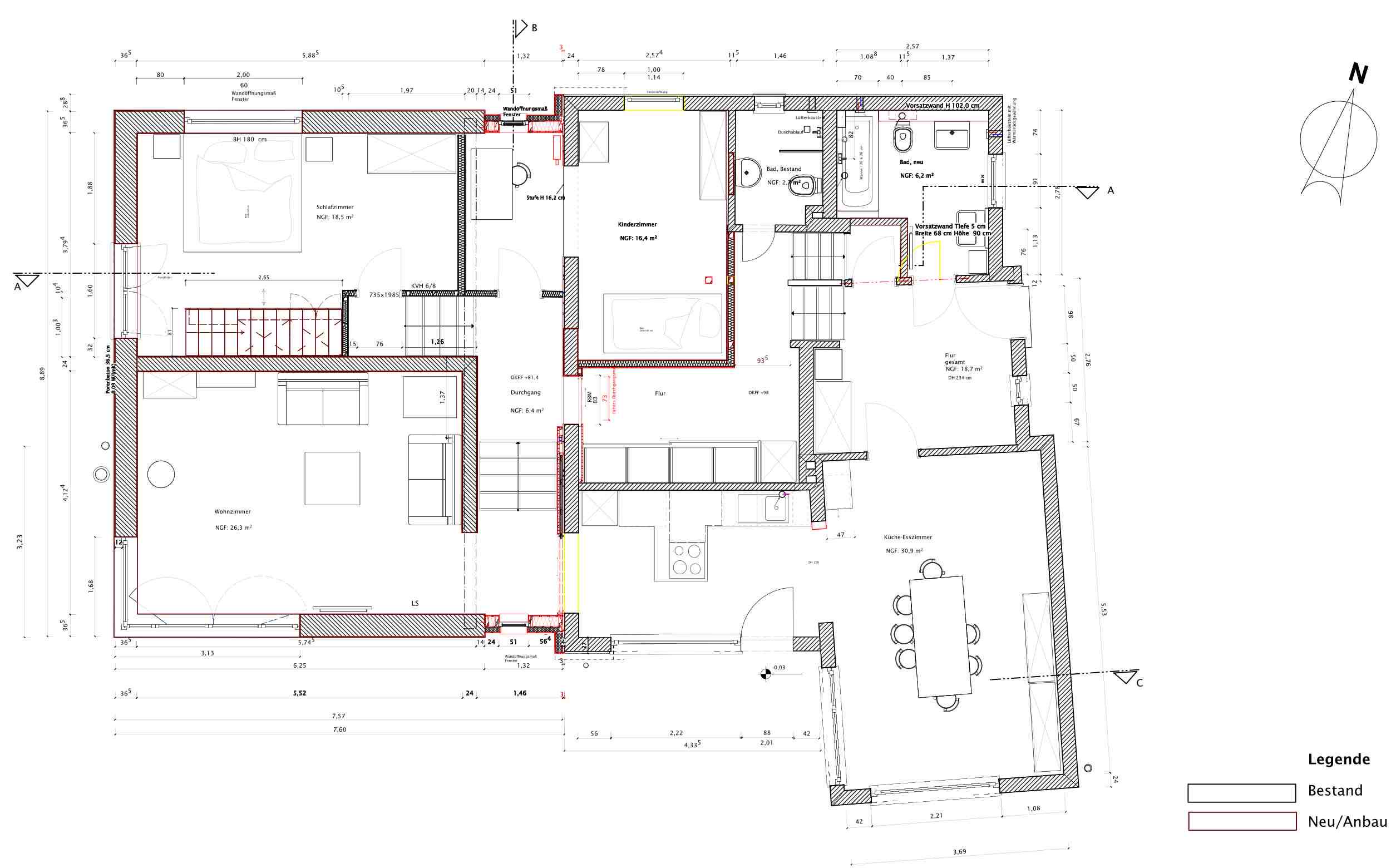
Ein Bauabschnitt mit Siedlungshäusern aus den 50er Jahren sind heute durch die gute Verkehrsanbindung zentrumsnahe, begehrte Wohnungen. Dieses Haus war durch den Ensembleschutz geschützt, zudem erkannte die Bauherrin in der dritten Generation den Wert des Bestandsgebäudes. Das Bestandsgebäude wurde saniert, das Treppenhaus bis zum Dach geöffnet, ein Anbau aus den 70er Jahren entfernt und ein neuer Anbau errichtet.

Anbau und

Umbau im Bestand



BV Belgarder Straße, Hamburg


Teilweise Rückbau

Sanierung des Bestandsgebäudes

Anbau


  • Leistungsphasen nach HOAI  1 - 8


NGF 232 qm

Bauausführung 7 Monate


2016

© BRUNO WINTER

Impressum

Kontakt