Nach Sicherung der alten Balkonplatten, abbruch und erneuern der Träger und der Auf- Unterlagsträger
Das Kirchengebäude, eine Stadtkirche aus 1912, wird im Gemeindeverbund hauptsächlich für sakrale Amtshandlungen genutzt. Das ursprüngliche Erscheinungsbild wurde durch eine Sanierung in den 30er und 60er Jahren grundlegend verändert, u.a. die Kapitell und der Hochaltar entfernt. Die imposanten Kirchenfenster von Charles Chrodel prägen den Kirchenraum.
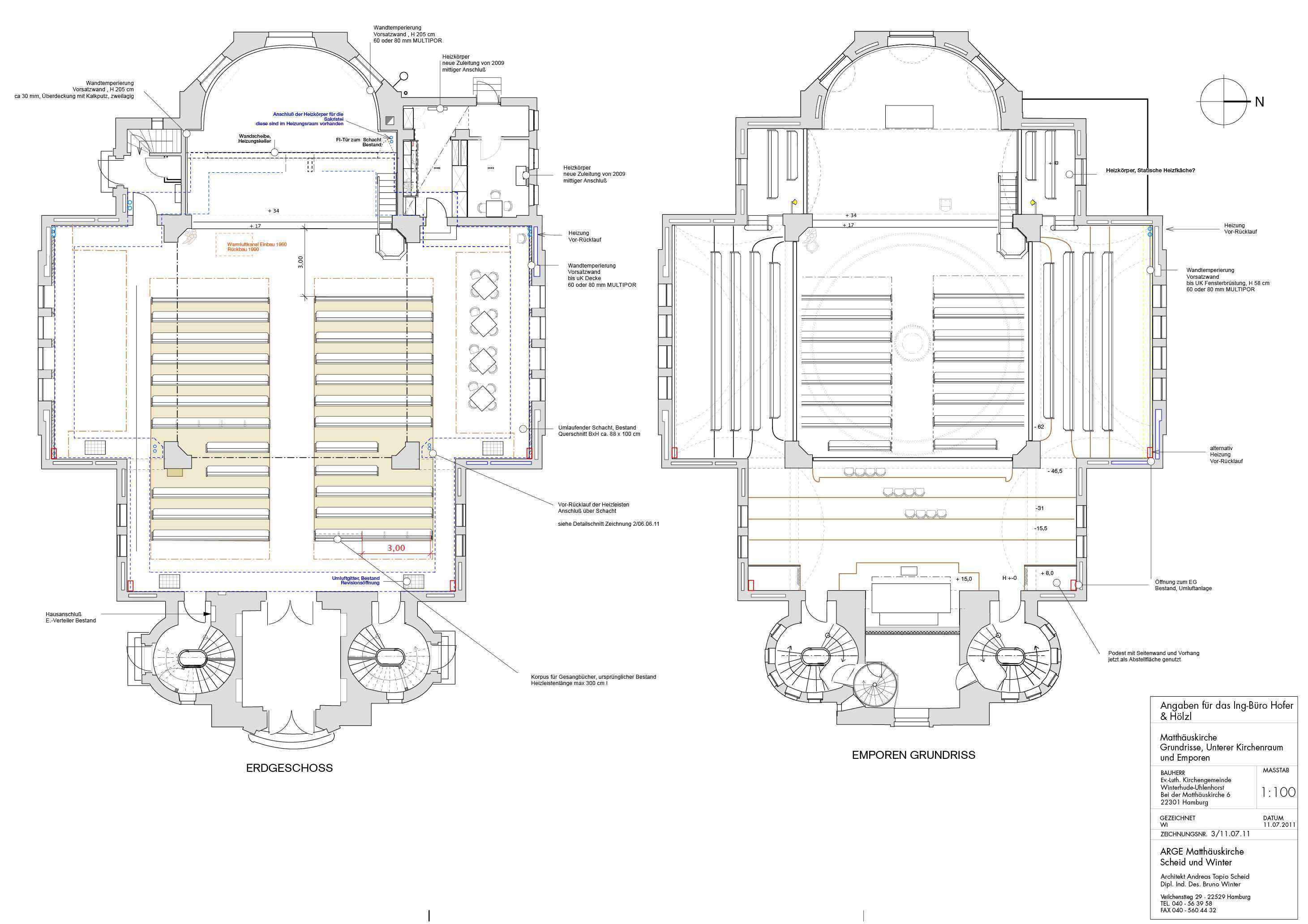
Sichtbare Schäden an der Bausubstanz, eine ungenügende Temperierung und eine unbefriedigende Nutzung des Altarraumes waren die Hauptpunkte für das Neugestaltungskonzept. Die Planung erfolgte in enger Abstimmung mit der Kirchengemeinde, der Behörde für Denkmalschutz und der kirchenaufsichtlichen Baubehörde. Ein sparsames Budget und die Vorgabe, vorhandene Prinzipalstücke unbedingt zu erhalten, begrenzten die gestalterische Neuausrichtung.
Eine grundlegende Neugestaltung erhielt der Altarraum. Aus dem Hochaltar wurde ein Volksaltar. Die Fenster in der Apsis werden optisch durch eine Wandschale getragen, die auch eine Wandtemperierung aufnimmt.
Podest, Tritt- und Setzstufe aus nahtlos eingebrachtem, eingefärbtem Magnesiaguss.
Das Sanierungskonzept beinhaltete ein neues Heizungssystem mit einer Bauteiltemperierung und Kirchenbankheizung, eine neue Beleuchtungsanlage mit unterschiedlichen Beleuchtungsszenarien, die Dämmung der Gewölbe und teilweise der Wandflächen, Instandsetzung der Putzflächen mit Anstrichen und der Kirchenfenster, Sondermöbel für den Kirchen- und Sakristeiraum, Sonderleuchten im Kirchenraum.
Ansicht, Kuppelunterseite mit Sonderleuchte
Das Mittelschiff hat einen sehr geringen Tageslichteintrag. Die Glasmalerei der Kirchenfenster von Charles Chrodel sind in kräftigen Farbtönen gehalten und reduzieren den Lichteinfall zusätzlich. Um den geringen Tageslichteintrag im Kirchenschiff zu kompensieren, wurde im Scheitel der Kuppel ein Leuchtkörper entworfen, der über Reflektorflächen auch die Kuppel ausleuchtet.